





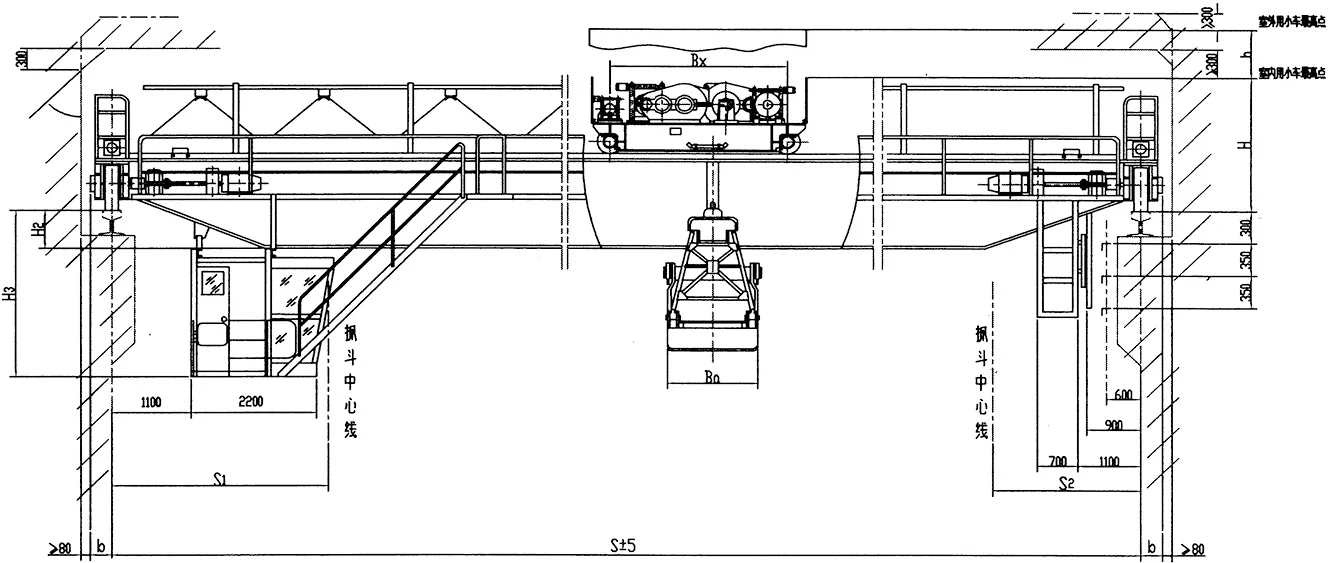
QZ 电动抓斗双梁桥式起重机是专为散料(矿石、粮食、煤炭等)搬运设计的重载型起重设备,采用双主梁 + 端梁的桥式结构,搭配电动抓斗作为取物装置。通过双主梁沿厂房 / 堆场轨道的纵向运行、小车沿主梁的横向移动,结合电动抓斗的自动开闭动作,可在矩形作业区域内高效完成散料的装卸、转运与堆垛。因其双梁重载结构 + 电动抓斗的自动化适配,已成为港口、矿山、粮食仓储等行业散料搬运的核心装备。
散料专属高效搬运
电动抓斗集成自动开闭机构,无需人工辅助即可完成散料的抓取 / 卸料,适配矿石、煤炭、谷物等各类散料,大幅提升装卸作业效率。
重载稳定承载能力
双主梁采用箱型梁结构,刚性强、承载性能优,工作等级高,可适配高频次、大载荷的散料搬运任务,运行稳定性远超单梁设备。
大范围作业覆盖
桥式结构配合双梁 + 小车的运行方式,作业范围覆盖整个厂房 / 堆场的矩形区域,空间利用率高,适配大跨度散料存储场景。
运行平稳操作智能
配备双梁专用 “三合一” 驱动系统,大车、小车运行平稳;抓斗与起升机构联动控制,支持驾驶室 / 遥控操作,操作精准且省力。
场景化灵活定制
可根据散料类型(适配不同抓斗类型:四绳抓斗、液压抓斗等)、起升高度、跨度等需求定制,适配港口、矿山等不同场景的散料搬运。
桥架(双主梁 + 端梁)
起升与抓斗机构
电气控制系统


| 产品 | QZ 电动抓斗双梁桥式起重机 |
| 举升范围 | 5-50 吨 / 可定制(对应抓斗容积 0.5-10m³) |
| 举升高度 | 6 9 12 18 24 32(米)/ 可定制 |
| 跨度 | 10.5-31.5 米 |
| 举升速度 | 10/5 m/min(起升 / 抓斗开闭速度) |
工作等级 | A5-A7(重载频繁工作制) |
| 工作环境温度 | -20~40℃ |
| 电源 | 三相 380V 50Hz |
| 工作速度 | 大车运行速度 20-30 米 / 分钟 小车运行速度 10-20 米 / 分钟 |







1、售前服务
2、售中服务
3、售后服务
按合同货客户约定时间进行设备安装、调试、维修 。
根据客户需求,提供现场培训。
接待处理客户对产品质量、服务质量的投诉,快速到达现场解决问题。
建立设备用户档案,每台设备的安装、调试、维修记录全部存档,保存。保证每个客户的每台产品具有服务的可追塑性及向客户对每台设备保养提供技术支持。
不定期进行客户回访,采集客户对产品及服务的意见和建议并及时改进。
各服务站由售后服务站统一调配,保证服务的及时性,有效性。
